Kayla Wagg

Pages

  • About
  • Work Experience
  • Contact
DribbbleFacebookInstagramLinkedInTwitterVimeoYouTube

Tags

  • All
  • AutoCAD
  • Bathrooms
  • Bedrooms
  • Commercial Design
  • Enscape
  • Home Renovation
  • Kitchens
  • Living Rooms
  • Photoshop
  • Presentations
  • Professional Photos
  • Renderings
  • Renovations
  • Residential Design
  • SketchUp

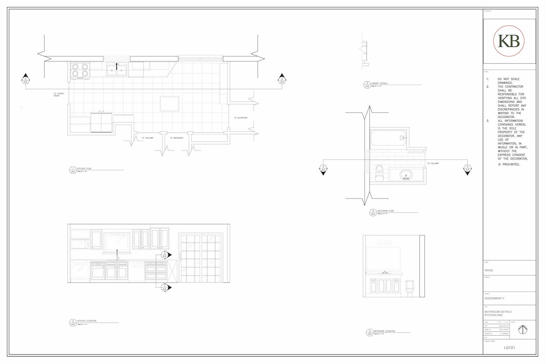
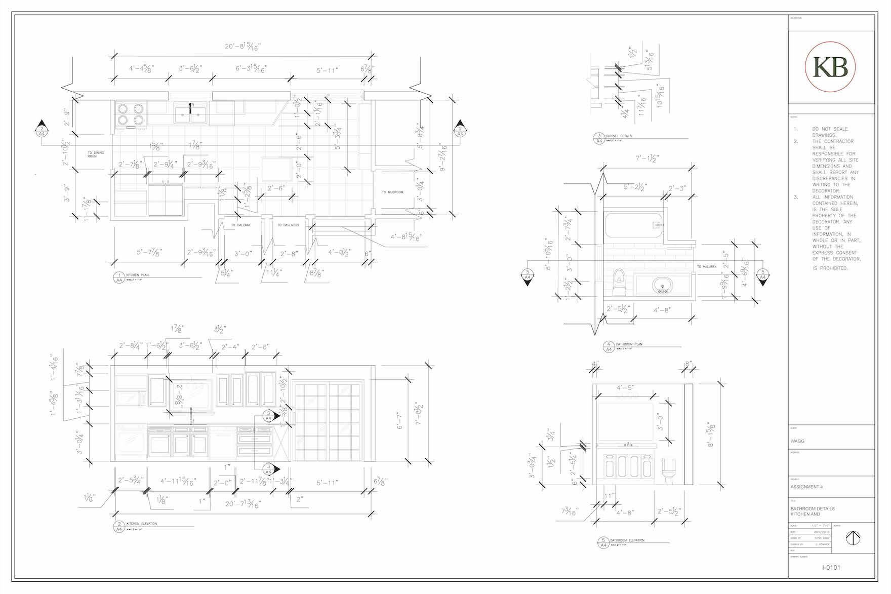
Project Nelson

Residential kitchen and bathroom partition and millwork plans. Created in AutoCad. 

Date

April 2021

Tags

AutoCAD, Bathrooms, Kitchens, Residential Design
Project Abruz

Project Abruz

Project Bedford

Project Bedford

Project Waycross

Project Waycross

Project Clark

Project Clark

Project 10 Side Road

Project 10 Side Road

Project Glenrose

Project Glenrose

Project Hidden Valley

Project Hidden Valley

Project Lombard

Project Lombard

Project Forbes

Project Forbes

Project Dorval

Project Dorval

Project Old Forest

Project Old Forest

Project McCarey

Project McCarey

Project Nelson

Project Nelson

Project Trinity

Project Trinity

Project Sheridan

Project Sheridan

© 2023 All rights reserved. Powered by Dunked
DribbbleFacebookInstagramLinkedInTwitterVimeoYouTube